Siège social / Bureaux et ateliers

Un siège social articulé autour d’un cœur paysager
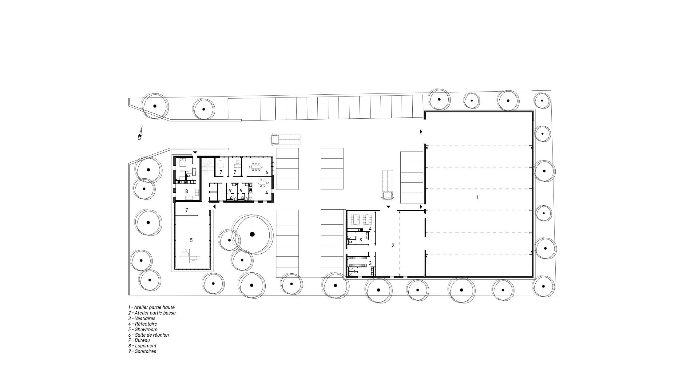
Implanté à Chelles, au sein d’une zone d’activité située à proximité du futur parc du Sempin, le projet réunit des bureaux et des ateliers pour une entreprise du bâtiment. L’ensemble prend place sur une parcelle largement ouverte, ce qui nous a conduits à créer une véritable centralité intérieure autour de laquelle s’organise tout le programme.
Deux bâtiments en L, une même cohérence
Le siège social se compose de deux bâtiments en L se faisant face. Cette disposition dessine un espace central structurant, où se concentrent les accès, les stationnements, les manœuvres de camions, ainsi qu’un jardin apportant ombre et fraîcheur.
Côté rue, le premier bâtiment accueille les bureaux sur deux niveaux, complétés d’un logement de fonction au rez-de-chaussée. Plus en retrait, le second bâtiment regroupe les ateliers de fabrication et les zones de stockage, préservant ainsi une certaine discrétion vis-à-vis de l’espace public.



Une architecture fonctionnelle et qualitative
Même si leurs usages diffèrent, les deux constructions partagent une écriture commune. Le vis-à-vis des deux L instaure un dialogue naturel, renforcé par des volumes simples et cubiques. Les matériaux et les teintes ont été choisis pour assurer cette unité : alternance de surfaces blanches et grises, bardage métallique nervuré, façades lisses jouant avec la lumière selon les heures de la journée.
Dans les ateliers, de larges panneaux en polycarbonate blanc offrent un apport généreux de lumière naturelle. Les façades pleines, en bardage métallique gris à profondes nervures verticales, rythment les grandes surfaces et donnent de la matière au bâtiment. Ce contraste entre clair et sombre se retrouve sur le bâtiment de bureaux, où les parties blanches deviennent des murs-rideaux. Pour le show-room, une sérigraphie inspirée de la transparence du polycarbonate habille la façade vitrée.

Des espaces de travail évolutifs et confortables
Les bureaux regroupent des espaces de tailles variées, organisés sur des plateaux libres de structure permettant une grande flexibilité. Le cloisonnement démontable facilite l’évolution de l’organisation interne. Les artisans bénéficient également d’une salle de réunion et d’un réfectoire conçu avec une belle hauteur sous plafond. Le show-room, traité comme un volume en encorbellement vers la rue, profite de matériaux intérieurs chaleureux et qualitatifs.
Des ateliers adaptés aux besoins de l’entreprise
Le principal atelier offre un vaste espace de 24 × 37 m, entièrement desservi par un pont roulant couvrant la totalité du volume. Un second bâtiment annexe abrite un atelier complémentaire ainsi que les locaux sociaux destinés aux équipes.



