Crèche + Bureaux / 125 berceaux



REHABILITATION ET CHANGEMENT D’USAGE D’UN BATIMENT R+4 SUR LE SITE DE L’HOPITAL AVICENNE A BOBIGNY
L’ancien bâtiment Françoise Collière, autrefois dédié à la formation des étudiants en soins infirmiers, a fait l’objet d’une transformation complète. Initialement composé de salles d’enseignement en rez-de-chaussée et de chambres individuelles aux étages, il accueille désormais deux programmes distincts aux accès séparés :
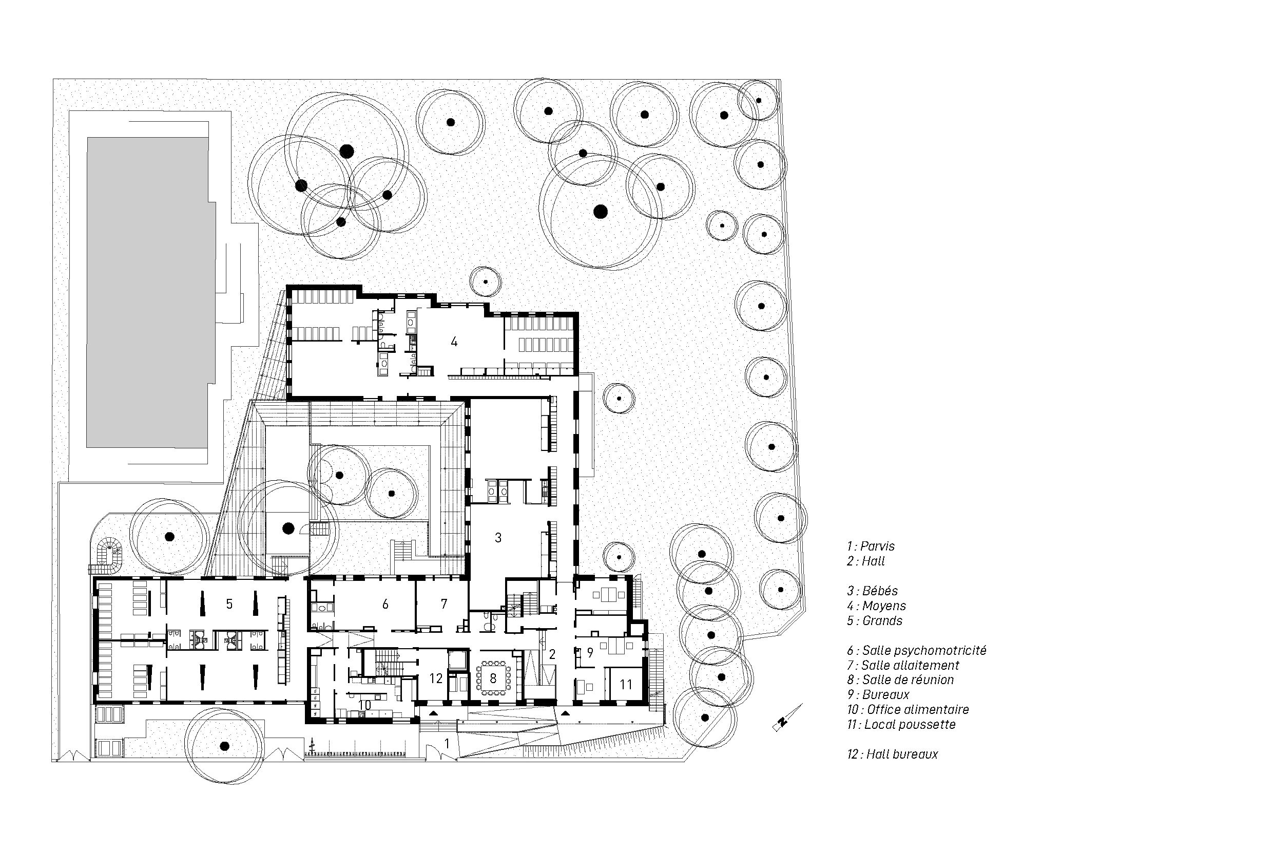
• Une crèche de 125 berceaux au rez-de-chaussée
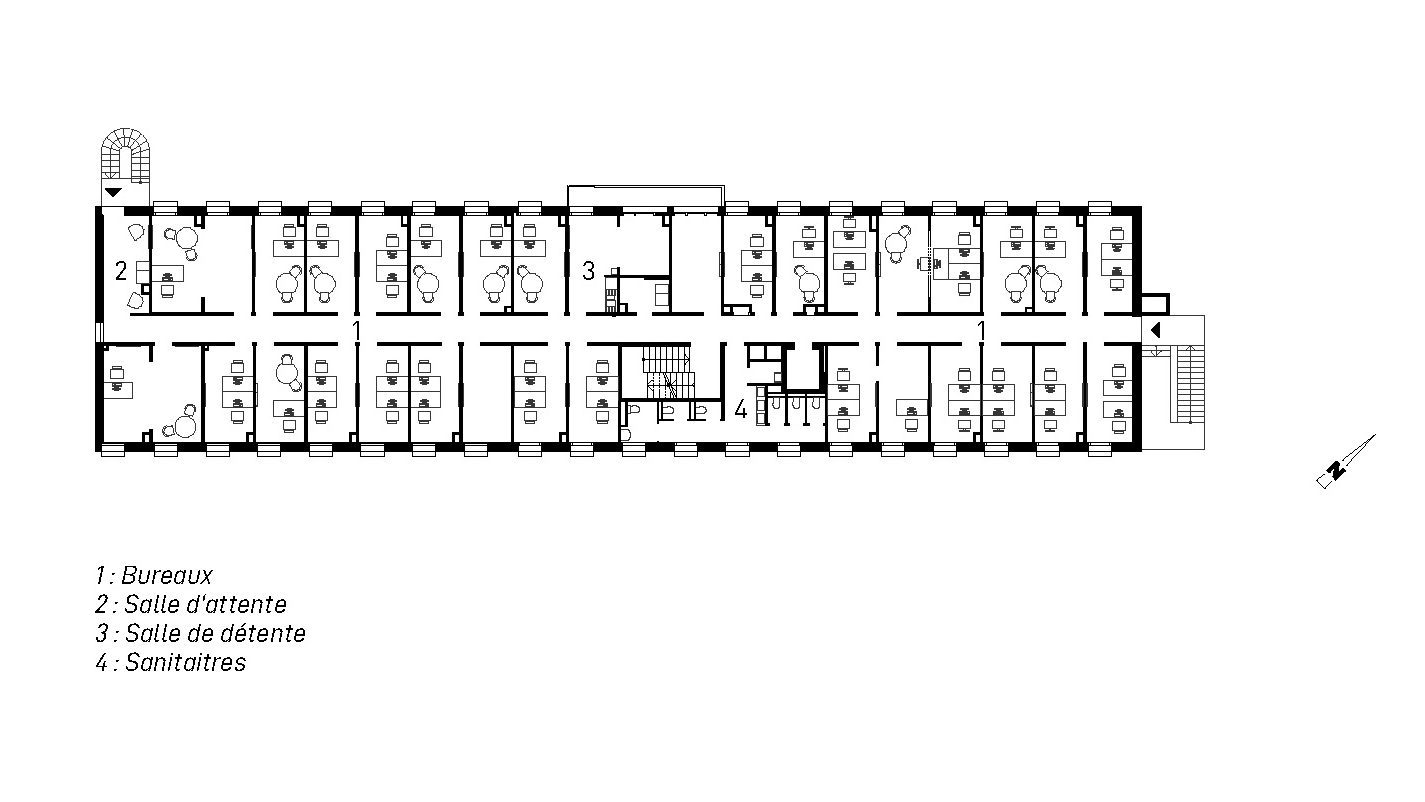
• Des bureaux répartis sur les quatre niveaux supérieurs
UN REZ-DE-CHAUSSEE METAMORPHOSE
La crèche s’organise en trois grandes sections – petits, moyens et grands – elles-mêmes dédoublées en six unités d’accueil. Le projet inclut la création d’une extension en ossature bois en lieu et place de l’ancien préau ainsi que l’aménagement d’une cour centrale autour de laquelle les sections se développent en U. Un nouveau préau en bois et polycarbonate recrée un lien visuel et fonctionnel entre les enfants malgré l’étendue de l’équipement.
L’ensemble des façades du niveau bas bénéficie d’une isolation thermique par l’extérieur et d’un bardage bois, renforçant le dialogue avec le jardin environnant.
DES BUREAUX ADAPTES A UNE STRUCTURE EXISTANTE CONTRAIGNANTE
La réhabilitation des étages a été guidée par la faible hauteur sous plafond, qui a complexifié l’intégration des bureaux et de leurs réseaux techniques. Par respect pour l’identité architecturale du lieu, la façade existante – caractérisée par son dessin graphique à panneaux pleins posés en quinconce – a été conservée. Une isolation intérieure et le remplacement des menuiseries bois permettent d’améliorer les performances tout en préservant l’expression d’origine.
UN DERNIER NIVEAU OUVERT SUR L’EXTERIEUR
Le dernier étage accueille de généreuses salles de réunion prolongées par une large terrasse aménagée, véritable espace de respiration pour les équipes de l’AP-HP. Une extension en bardage bois ajouré dissimule élégamment la zone technique regroupant les équipements de ventilation et de rafraîchissement.
ACCESSIBILITE ET COHERENCE D’ENSEMBLE
L’accessibilité du bâtiment est assurée par la création d’un ascenseur dédié aux bureaux et par l’installation de rampes reliant les demi-niveaux de la crèche.
Cette transformation, volontairement profonde, permet d’adapter l’existant à ses nouveaux usages tout en s’appuyant sur sa morphologie originelle. Le traitement en bardage bois du rez-de-chaussée vient unifier les espaces de la crèche avec le paysage du jardin, tandis que les étages conservent l’écriture façadière emblématique du bâtiment d’origine.







